search
  • This Campus For A 100 Year Old Trust Is A 10 Acre Multifunctional Campus | KSM Architecture

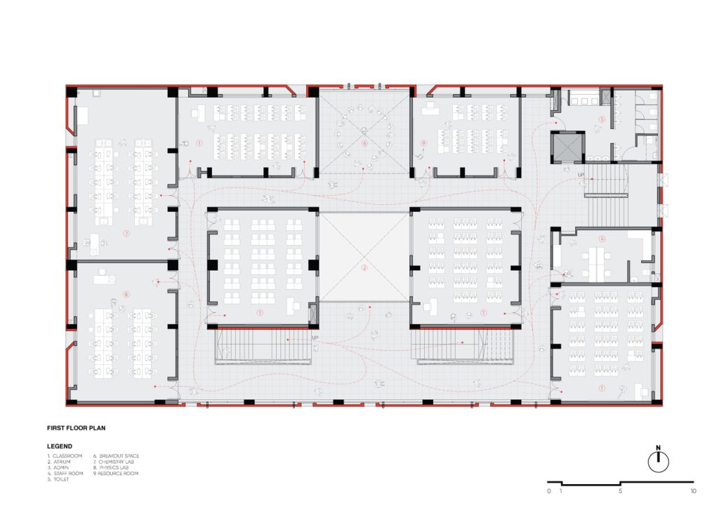
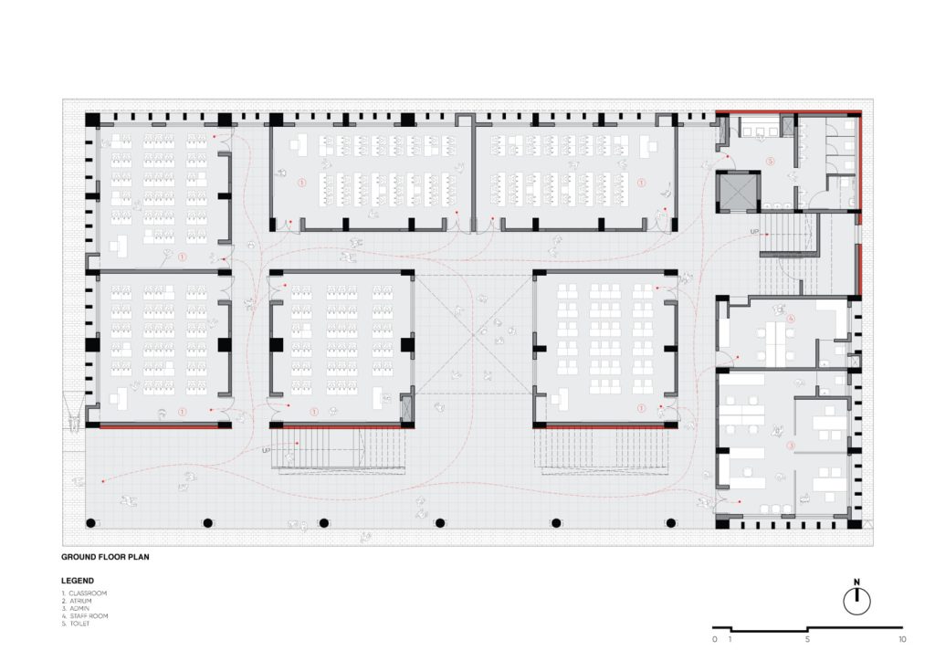
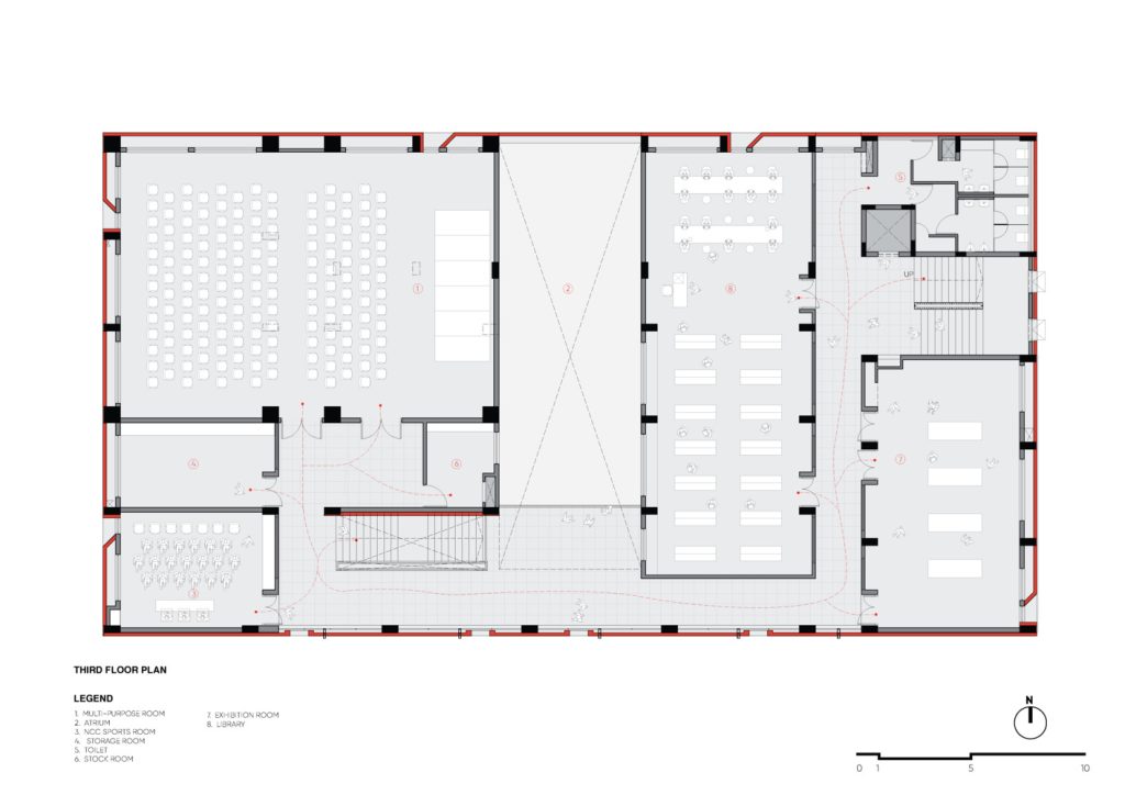
    The Anjuman-E-Himayat-E-Islam Trust in Thiagaraya Nagar, Chennai, is over a 100 year old. It is a Trust that provides care and education for orphan children and children from a poor economic background. The organizers envisaged the project for orphan boys between grades 6 and 12. It is located on a designated site within a 10-acre campus that houses a mosque and multiple educational institutions. These include vocational training centres, and accommodation for underprivileged children. A group of benefactors associated with the Trust funded the project. They constructed it on a tight and economical budget.

    This Campus For A 100 Year Old Trust Is A 10 Acre Multifunctional Campus | KSM Architecture

    100 year old

    100 year old

    The Site

    The site identified for the school building of the 100 year old trust is a rectangular piece of land about 1600 sqm, adjacent to the main play field to the West and a rainwater harvesting pond to the South. Being close to the Eastern and Southern boundaries, it was important to maintain privacy for the building. 

    100 year old

    100 year old

    Design Intent

    The design intent was to maximize natural light and ventilation in the school while maintaining privacy. Also, being close to the main rainwater collection pond of the site, it was imperative to raise the plinth of the building to avoid flooding. 

    100 year old

    100 year old

    The building comprises two interconnected volumes that are wrapped around by a brick envelope. The longer side of the footprint faces North and South – the latter being the ambient wind direction in Chennai. The design sought to maximize the breeze flowing through the building while keeping the harsh sun out.

    100 year old

    100 year old

    Materials

    The choice of material not only pays homage to local tradition but also is sustainable, durable, and provides thermal efficiency.  A central skylight court bathes the interior spaces in natural light, fostering an environment conducive to learning. A skylight central straight-flight staircase connects all the levels of the school, opening into verandas.

    100 year old

    Verandahs

    The verandas are located on the longer southern edge of the building, which allows the South breezes to flow through a perforated brick façade, naturally ventilating the classrooms and the central atrium. Strategic placement of the utilities and services ensures functionality, with laboratories occupying the hot western side while the toilets and staircase core are on the eastern side.

    Brick Facade

    The brick façade is inspired by traditional Islamic jallis. This interpretation of jallis filters light to provide glare-free natural light through the day while minimising heat gain, especially during scorching summers, with the cool south breeze wafting through the jallis all year round. The brick jallis pattern uses all three dimensions of a brick – its length, breadth, and height in a manner ensuring no wastage at all, while providing an interesting pattern of voids in the façade.  

    Use of Colors

    The width of the voids is maintained to be not greater than 60mm, thereby preventing pigeons from roosting in the cavities.  Colour is used at the entrance of each classroom of the school building in this 100 year old trusts campus and in the form of checkered patterns on the floor of the breakout spaces, providing visual relief from the brick and concrete surfaces.

    Fact File

    Designed by:  KSM Architecture

    Project Type: Educational Architecture Design

    Project Name: Anjuman School Teynampet Chennai

    Location: Chennai, Tamil Nadu

    Year Built: 2024

    Team Design Credits:  Sriram Ganapathi, Siddarth Money, Moiz M.D, Mohan Raj, S.Seran, Mathivanan.P, G.Deivanayagi

    Photograph Courtesy: Sreenag Pictures

    Source: Archdaily

    Firm’s Website Link:  KSM Architecture

    Firm’s Instagram Link:  KSM Architecture

    For Similar Project >>> Kai Early Learning Campus With Well Designed Communal Play Spaces

    This Residence Was Conceived As An Inward-Looking Sanctuary For A Family Of Four | The Insideout Studio

    Situated on a compact 1200 sft south-west corner plot, this residence was conceived as an inward-looking sanctuary for a family of four — a home that balances privacy and openness, light and enclosure, within the dense urban fabric. This Residence Was Conceived As An Inward-Looking Sanctuary For A Family Of Four | The Insideout Studio […]

    Read More

    The Design Language Of This Residence Is Typically Associated With Sustainability | Kamat & Rozario Architecture

    ‘Roots’ was an experiment to build sustainably but not confer to the design language typically associated with sustainable buildings. This residential project re-considers the expression of sustainable architecture through a minimalist and materially grounded lens. Located on a 4,000 sq.ft. plot, the designers conceived the house for a family of three and their pet, organizing […]

    Read More

    This Greenery House Design Becomes A Perfect Solution for Wellness and Space | Studio DWS

    This project was planned in between lockdown when the client realized the importance of open space close to nature, aligning with a greenery house design that was required by the client’s aging parents and his young kids. Editor’s Note: Rooted in stillness and shaped by togetherness, this home flows gently between the indoors and nature […]

    Read More

    Spread Across 3 Acres This Home Reinvents Geometry & Material | RENESA Architecture Design Interiors Studio

    The Sanctum in Amritsar, designed by Renesa Architecture Design Interiors Studio, stands as a rare architectural experiment in India. It is an attempt to reinvent the domestic typology through geometry, material, and spatial narrative. Spread over 12,000 sq ft on a generous 3 acres plot, the house positions itself as a contemporary meditation on permanence and […]

    Read More

    Modern Aesthetics And Mindful Design Strike The Perfect Balance In This Home | KD Associate

    Mishti’s House by KD ASSOCIATE  is a striking example of contemporary residential architecture that blends modern aesthetics with mindful design. The facade features a harmonious mix of exposed red brick, smooth white plaster, and wooden-toned vertical fins, creating depth and visual balance. A unique geometric lattice screen with a Buddha motif serves as both a […]

    Read More

    This Home On An East Facing Plot Has A Strong Visual Identity That Stands Out | a+me Architects

    Located in HMT Layout, Bangalore, Isha_Srinidhi Nilaya stands as a multi-generational home designed on a compact 60×40 ft (2400 sq. ft) East facing plot, with a total built-up area of 8000 sq. ft. East Facing a lush public park, the residence responds to its urban setting through a layered design that balances privacy with a […]

    Read More

    15 Courtyards in Houses: Designing Tranquil Spaces That Elevate Homes

    Timeless architectural features, such as courtyards, are always associated with bringing the naturally public forms to the world’s heart, building the most peaceful, secluded outdoor areas. These outdoor spaces maximize the living experience with their private space feature, which gives one the option for leisurely relaxation, recreation, or gardening. Furthermore, it has also been a […]

    Read More

    15 Architecture Fonts Every Architect Should Know

    Architecture font choices go beyond style—they shape how your work is perceived. From portfolios to presentations, the right architecture font instantly communicates clarity, precision, and personality. As architects, we design not just with space but with every detail, including typography. Selecting a strong architecture font shows your commitment to visual storytelling and design consistency. In […]

    Read More

    Farmhouse Designs in India: 15 Inspiring Styles To Know

    The Indian farmhouse accommodation goes on to capitalize on a mature evolutionary synthesis of ancestral aesthetics and contemporary features. With this, the outside and the inside of farmhouses became places of comfort with nature. In this blog, we delve into 15 incredible farmhouse designs that entail a harmonious blending. While they exhibit different spaces in […]

    Read More

    This Tropical Home Design Features A Striking Sloped Terracotta Roof In Kerala | Vriksha Architects

    Aangan is a modern residence that seamlessly integrates with the lush environment of Kerala, showcasing a tropical home design. Designed to embrace the region’s warm climate, the house features a striking sloped terracotta roof at varying levels, enhancing both its aesthetic appeal and functional efficiency. The structure is enveloped in a vibrant tropical landscape, adorned […]

    Read More
  • This Clutter Free Home Is Grounded In Nature And Doesnt Demand Attention | Tvashta Architects & Interiors

    How Future-Ready Garage Doors Are Redefining Modern Home Security