search
  • This West-Facing Home Exemplifies Sophisticated Residential Design | Infinity Design Studio

    This modern minimal villa exemplifies sophisticated residential design through its thoughtful response to west-facing orientation. The seamless integration of traditional values is done within contemporary architectural language. The project demonstrates how climate-responsive design strategies can enhance both aesthetic quality and functional performance.

    This West-Facing Home Exemplifies Sophisticated Residential Design | Infinity Design Studio

    west-facing

    Facade Strategy and Climate Response

    The west-facing facade addresses challenging solar conditions through strategic punctured wall design. They have glass infills that create dramatic shadow patterns while providing effective heat reduction.

    west-facing

    These geometric perforations animate interior spaces throughout the day. Tile cladding and metal screening systems work together to minimize thermal gain. The evening facade illumination transforms the building into a contemporary beacon. Warm interior lighting filters through the glass-filled openings to create visual depth and architectural hierarchy.

    west-facing

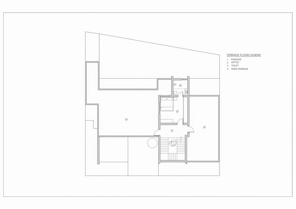
    Entrance Sequence and Spatial Drama

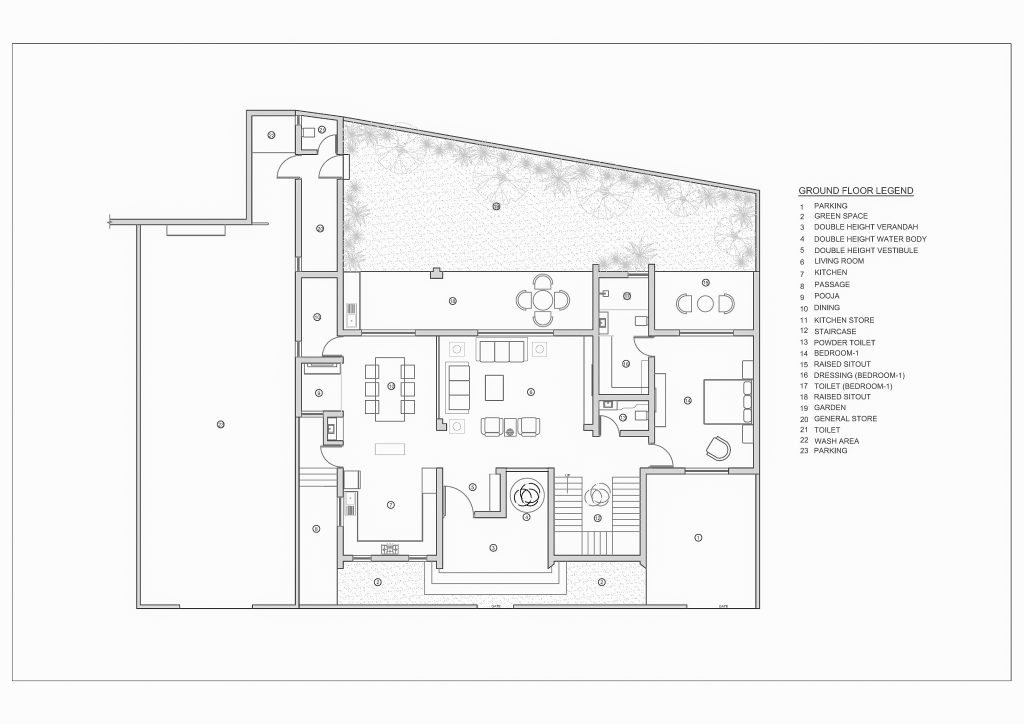
    The arrival experience establishes immediate architectural impact through the double-height entrance foyer featuring sculptural water elements with ceramic vessels that provide both evaporative cooling and acoustic tranquillity.

    west-facing

    The floating concrete staircase becomes a central sculptural element, incorporating 9-inch hanging wooden elements on both sides while strategic perforations create dynamic shadow play, transforming natural light into architectural poetry.

    The staircase wall design showcases exceptional craftsmanship through large-format stone tiles combined with bronze glass accents, while rose gold spherical pendant lights create dramatic vertical emphasis and luxury ambiance throughout the double-height volume.

    west-facing

    Living Spaces and Cultural Integration

    The central living room functions as the spatial heart, featuring sophisticated material coordination including walnut wood veneer, fluted dark panels, and natural stone compositions.

    west-facing

    The innovative dining partition demonstrates exceptional wooden craftsmanship through modular framework panels containing diverse geometric patterns, Om symbols, and traditional motifs that celebrate sacred geometry within contemporary vocabulary.

    west-facing

    The temple area with tri-fold doors allows complete opening when required, creating seamless integration between sacred and secular spaces.

    west-facing

    This cultural sensitivity combined with modern aesthetics represents the project’s commitment to contextual appropriateness while maintaining architectural progressiveness.

    west-facing

    Bedroom Design Excellence

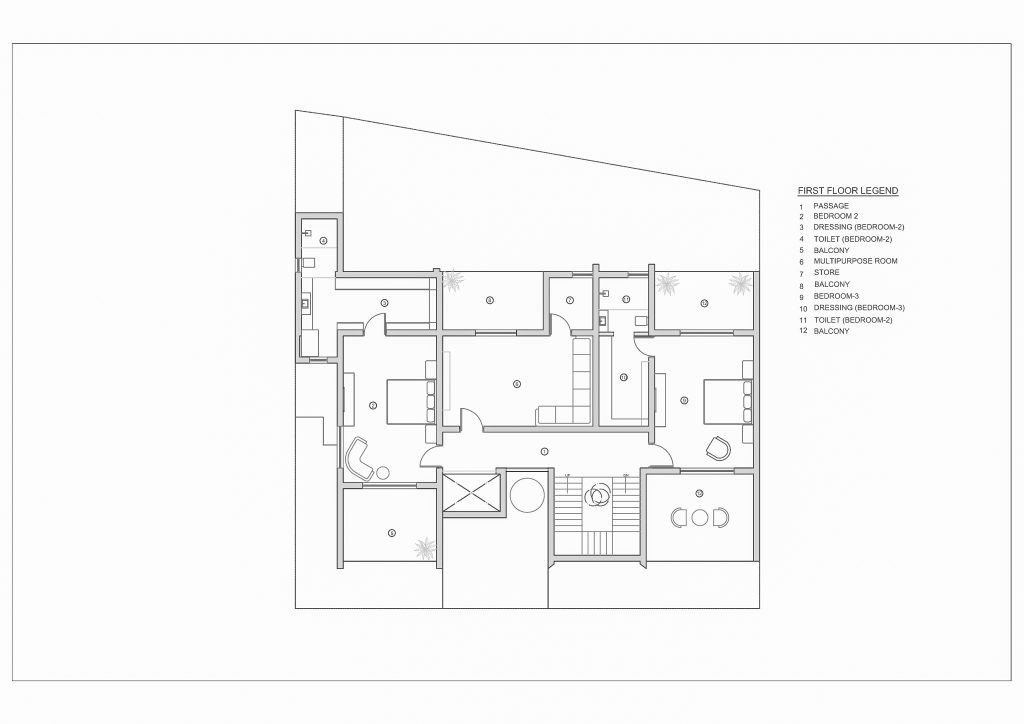
    The three bedrooms each demonstrate unique design approaches while maintaining overall project coherence, with strategic balcony and garden access enhancing indoor-outdoor connectivity.

    The master bedroom on the first floor features a dramatic stone accent wall behind the bed that creates sophisticated textural contrast with the neutral earth tones throughout the space. The natural stone provides organic texture and visual weight that anchors the sleeping area, while vertical wood paneling elements on adjacent walls create complementary material layering.

    Contemporary furniture including curved seating and warm pendant lighting establish a serene retreat atmosphere. The room includes private balcony access providing additional outdoor living space and natural ventilation.

    west-facing

    The guest bedroom features direct garden access that seamlessly extends living space into the landscaped outdoor areas.

    west-facing

    The clean geometric headboard design with precision-cut upholstery creates visual rhythm, while large sliding doors ensure immediate connection to the private rear garden.

    This garden integration provides guests with private outdoor retreat space and natural cooling through landscape adjacency.

    Parents’ bedroom

    The parents’ bedroom showcases exceptional planning with dual balcony access on both east and west orientations, ensuring optimal cross-ventilation and natural light throughout the day despite the west-facing plot challenges. The curved headboard wall treatment creates an intimate cocoon-like environment, while warm beige and gray palettes promote relaxation. This dual-balcony configuration provides flexibility for morning and evening outdoor activities while mitigating heat gain through strategic shading.

    Spatial Flow and Planning Strategy

    The residence demonstrates exceptional spatial planning through its central circulation strategy. The 5-foot passages from the living room facilitate natural movement between dining, kitchen, and outdoor areas, creating intuitive flow patterns that enhance daily living experiences.

    The innovative circular opening within the dining-living partition creates visual connection while enabling television viewing from multiple positions.

    The rear garden positioning maximizes private outdoor space while providing direct access from multiple interior areas. Covered outdoor spaces extend functional areas beyond the building envelope, creating opportunities for outdoor dining and entertainment that are essential in the regional climate.

    Conclusion

    This modern minimal villa successfully transforms west-facing challenges into architectural opportunities. Through strategic material selection, intelligent spatial planning, and meticulous attention to detail, the design achieves perfect balance between minimalism and luxury that defines contemporary residential excellence.

    The residence demonstrates how thoughtful architectural process combined with exceptional craftsmanship can create homes that exceed expectations in both aesthetic achievement and functional performance, establishing new benchmarks for climate-responsive luxury residential design.

    Fact File

    Designed byInfinity Design Studio

    Project Type: Residential Architecture & Interior Design

    Project Name: Modern Minimal Villa: A West-Facing Contemporary Residence

    Location: Bhuj – Kutch

    Year Built: 2024

    Duration of project: 24 Months

    Project Size: 6000 Sq.ft

    Project Cost : 5 Crore

    Principal Architect: Keyur Gor

    Team Design Credits: Ar. Divesh Kerai & Ashwini Kerai

    Photograph Courtesy: Inclined Studio

    Products / Materials / Vendors: Wallcovering / Cladding – Exterior Tile and Kadappa Stone, Interior Pu, Veneer, Stone Veneer and Paints / Construction Materials – sandstone block, Concrete, Steel / Lighting – Changi / Sanitaryware – Kohler / Windows – Alu Globe Furniture – Eminence Furniture / Flooring – Naxion and Lioli / Kitchen – On Site with Vegan Wood carcase and Hafele Hardware / Paint – Jotun Jotashield Tex Ultra for Exterior and Jotun Fenomastic Lux / Artefacts – Clear Crafts / Hardware – Hafele

    Firm’s Website Link: Infinity Design Studio

    Firm’s Instagram Link: Infinity Design Studio

    For Similar Project >>> Residential Architecture Is Meticulously Crafted To Meet The Diverse Needs

    This Residence Was Conceived As An Inward-Looking Sanctuary For A Family Of Four | The Insideout Studio

    Situated on a compact 1200 sft south-west corner plot, this residence was conceived as an inward-looking sanctuary for a family of four — a home that balances privacy and openness, light and enclosure, within the dense urban fabric. This Residence Was Conceived As An Inward-Looking Sanctuary For A Family Of Four | The Insideout Studio […]

    Read More

    The Design Language Of This Residence Is Typically Associated With Sustainability | Kamat & Rozario Architecture

    ‘Roots’ was an experiment to build sustainably but not confer to the design language typically associated with sustainable buildings. This residential project re-considers the expression of sustainable architecture through a minimalist and materially grounded lens. Located on a 4,000 sq.ft. plot, the designers conceived the house for a family of three and their pet, organizing […]

    Read More

    This Greenery House Design Becomes A Perfect Solution for Wellness and Space | Studio DWS

    This project was planned in between lockdown when the client realized the importance of open space close to nature, aligning with a greenery house design that was required by the client’s aging parents and his young kids. Editor’s Note: Rooted in stillness and shaped by togetherness, this home flows gently between the indoors and nature […]

    Read More

    Spread Across 3 Acres This Home Reinvents Geometry & Material | RENESA Architecture Design Interiors Studio

    The Sanctum in Amritsar, designed by Renesa Architecture Design Interiors Studio, stands as a rare architectural experiment in India. It is an attempt to reinvent the domestic typology through geometry, material, and spatial narrative. Spread over 12,000 sq ft on a generous 3 acres plot, the house positions itself as a contemporary meditation on permanence and […]

    Read More

    Modern Aesthetics And Mindful Design Strike The Perfect Balance In This Home | KD Associate

    Mishti’s House by KD ASSOCIATE  is a striking example of contemporary residential architecture that blends modern aesthetics with mindful design. The facade features a harmonious mix of exposed red brick, smooth white plaster, and wooden-toned vertical fins, creating depth and visual balance. A unique geometric lattice screen with a Buddha motif serves as both a […]

    Read More

    This Home On An East Facing Plot Has A Strong Visual Identity That Stands Out | a+me Architects

    Located in HMT Layout, Bangalore, Isha_Srinidhi Nilaya stands as a multi-generational home designed on a compact 60×40 ft (2400 sq. ft) East facing plot, with a total built-up area of 8000 sq. ft. East Facing a lush public park, the residence responds to its urban setting through a layered design that balances privacy with a […]

    Read More

    15 Courtyards in Houses: Designing Tranquil Spaces That Elevate Homes

    Timeless architectural features, such as courtyards, are always associated with bringing the naturally public forms to the world’s heart, building the most peaceful, secluded outdoor areas. These outdoor spaces maximize the living experience with their private space feature, which gives one the option for leisurely relaxation, recreation, or gardening. Furthermore, it has also been a […]

    Read More

    15 Architecture Fonts Every Architect Should Know

    Architecture font choices go beyond style—they shape how your work is perceived. From portfolios to presentations, the right architecture font instantly communicates clarity, precision, and personality. As architects, we design not just with space but with every detail, including typography. Selecting a strong architecture font shows your commitment to visual storytelling and design consistency. In […]

    Read More

    Farmhouse Designs in India: 15 Inspiring Styles To Know

    The Indian farmhouse accommodation goes on to capitalize on a mature evolutionary synthesis of ancestral aesthetics and contemporary features. With this, the outside and the inside of farmhouses became places of comfort with nature. In this blog, we delve into 15 incredible farmhouse designs that entail a harmonious blending. While they exhibit different spaces in […]

    Read More

    This Tropical Home Design Features A Striking Sloped Terracotta Roof In Kerala | Vriksha Architects

    Aangan is a modern residence that seamlessly integrates with the lush environment of Kerala, showcasing a tropical home design. Designed to embrace the region’s warm climate, the house features a striking sloped terracotta roof at varying levels, enhancing both its aesthetic appeal and functional efficiency. The structure is enveloped in a vibrant tropical landscape, adorned […]

    Read More
  • This Spanish Inspired European villa Is Blended With Indian aesthetics | Priyank & Mitali Interiors

    Designed Within A Linear Space, This Restaurant Replaces A Previous Bowling Alley | Minnie Bhatt Designs