search
  • Office Renovation | Design Experiment

    Office Renovation | Design Experiment 

    Architects use design to develop trust in an industry fraught with scandals.

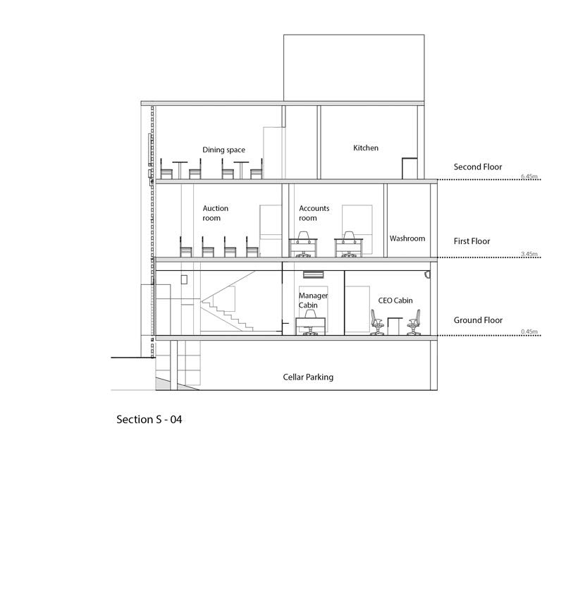
    Intention and identity were the two challenges presented to design experiment When asked to renovation of an old building for a chit funds office. The intention of the company was clear, to instill confidence in the chit funds offices’ potential customers.

    The chit funds industry has been fraught with scandals, from own-ers shutting shop abruptly, to refusing to pay up to its customers, so the architects came up with a novel way to propagate trust amongst its patrons. A simple design intervention in terms of installing a large continuous scrolling LED strip, broadcasting how much the company paid out to its customers that week. The designers felt that, by increasing such evident transparency, it would be possible to earn the trust of its patrons.

    FACT FILE:

    Architectural firm: Design Experiment

    Category: Renovation Project

    Programme : Commercial / Office Space

    Project name: Chit Funds Office

    Project location: Ramkote, Hyderabad, Telangana – India

    Site Area: 156 sqm

    Built Up Area: 260 sqm

    Month/Year of Commencement -Completion: November 2016 – January 2017

    Photography Credits: Abhitej Velore and Anees Tasneem

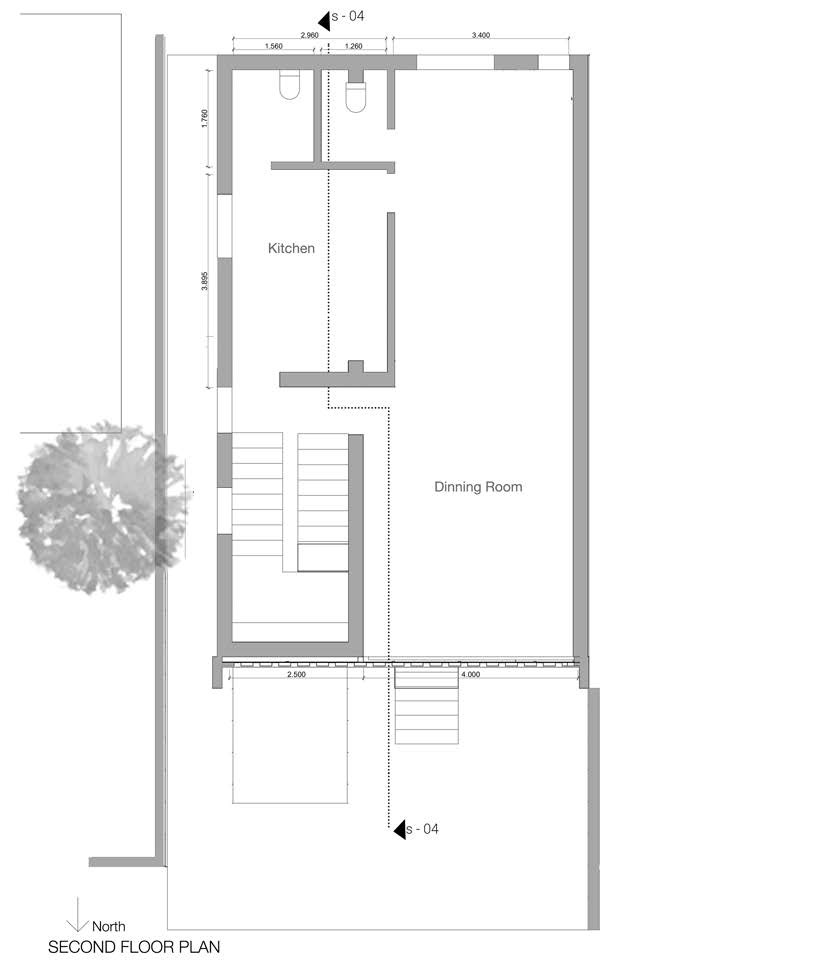
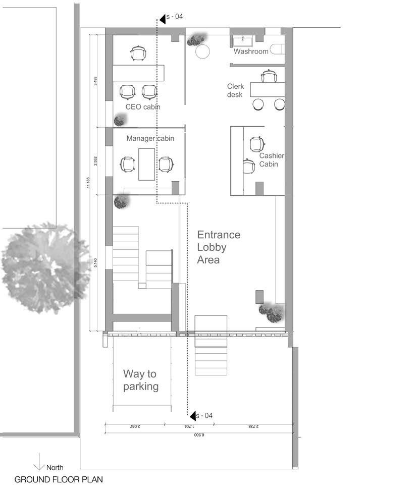
    One of the other undercurrent of this project was that The entire office needed to be designed and built in 45 days, so the designers chose to go with a design language that would try to stand out without disre-specting its surroundings, and that a brick façade would be detailed specifically to be rapidly constructed.

    The second task of creating an identity not only through its space but also through its graphic language and branding was handled by DE.DE used this opportunity to create a unique blend of stability + forward thinking by combining the offices’ façade with its modern branding. The interiors of the building combine environmental graphics of simple minimal quality with clean and crisp visual communication to emphasize on the company’s forward think-ing and transparent brand values.

    Spread Across 3 Acres This Home Reinvents Geometry & Material | RENESA Architecture Design Interiors Studio

    The Sanctum in Amritsar, designed by Renesa Architecture Design Interiors Studio, stands as a rare architectural experiment in India. It is an attempt to reinvent the domestic typology through geometry, material, and spatial narrative. Spread over 12,000 sq ft on a generous 3 acres plot, the house positions itself as a contemporary meditation on permanence and […]

    Read More

    Modern Aesthetics And Mindful Design Strike The Perfect Balance In This Home | KD Associate

    Mishti’s House by KD ASSOCIATE  is a striking example of contemporary residential architecture that blends modern aesthetics with mindful design. The facade features a harmonious mix of exposed red brick, smooth white plaster, and wooden-toned vertical fins, creating depth and visual balance. A unique geometric lattice screen with a Buddha motif serves as both a […]

    Read More

    This Renovated House In Gurugram Has An Inward Looking Courtyard | Studio Juggernaut

    Our urban landscapes are undergoing a rapid transformation, pressured by burgeoning populations and increasing demands on city infrastructure. To address these escalating challenges, urban planners continually revise zoning regulations. In Delhi, for instance, a significant regulatory change introduced mandatory stilt parking on small urban lots with four habitable floors above. Gurugram, a satellite city, subsequently adopted […]

    Read More

    This Home On An East Facing Plot Has A Strong Visual Identity That Stands Out | a+me Architects

    Located in HMT Layout, Bangalore, Isha_Srinidhi Nilaya stands as a multi-generational home designed on a compact 60×40 ft (2400 sq. ft) East facing plot, with a total built-up area of 8000 sq. ft. East Facing a lush public park, the residence responds to its urban setting through a layered design that balances privacy with a […]

    Read More

    15 Courtyards in Houses: Designing Tranquil Spaces That Elevate Homes

    Timeless architectural features, such as courtyards, are always associated with bringing the naturally public forms to the world’s heart, building the most peaceful, secluded outdoor areas. These outdoor spaces maximize the living experience with their private space feature, which gives one the option for leisurely relaxation, recreation, or gardening. Furthermore, it has also been a […]

    Read More

    15 Architecture Fonts Every Architect Should Know

    Architecture font choices go beyond style—they shape how your work is perceived. From portfolios to presentations, the right architecture font instantly communicates clarity, precision, and personality. As architects, we design not just with space but with every detail, including typography. Selecting a strong architecture font shows your commitment to visual storytelling and design consistency. In […]

    Read More

    Farmhouse Designs in India: 15 Inspiring Styles To Know

    The Indian farmhouse accommodation goes on to capitalize on a mature evolutionary synthesis of ancestral aesthetics and contemporary features. With this, the outside and the inside of farmhouses became places of comfort with nature. In this blog, we delve into 15 incredible farmhouse designs that entail a harmonious blending. While they exhibit different spaces in […]

    Read More

    This Tropical Home Design Features A Striking Sloped Terracotta Roof In Kerala | Vriksha Architects

    Aangan is a modern residence that seamlessly integrates with the lush environment of Kerala, showcasing a tropical home design. Designed to embrace the region’s warm climate, the house features a striking sloped terracotta roof at varying levels, enhancing both its aesthetic appeal and functional efficiency. The structure is enveloped in a vibrant tropical landscape, adorned […]

    Read More

    50 Indian Door Design For Main Door To Enhance the Curb Appeal

    The door design for main door is a defining feature of any Indian home, embodying both style and cultural significance. In a country rich with diverse architectural traditions, the entrance to your home reflects not only personal taste but also cultural heritage. Whether you’re drawn to the intricate carvings of traditional Indian door designs or […]

    Read More

    50 Best Pillar Design Ideas And Inspirations For Indian Spaces

    Pillar design is a cornerstone of architectural elegance, seamlessly blending structural support with aesthetic appeal. Our blog, “50 Best Pillar Design Inspirations,” celebrates this essential element, showcasing a variety of styles from classical Doric and Ionic to contemporary and avant-garde innovations. Whether you’re an architect, interior designer, or a design enthusiast, these pillar design inspirations […]

    Read More
  • Three reasons to invest (wisely) in real estate right now

    Water Filtration - Install a Whole House Water Filter