search
  • Inside This Quiet Retreat: Where Architecture Meets Serenity | i2a Architects Studio

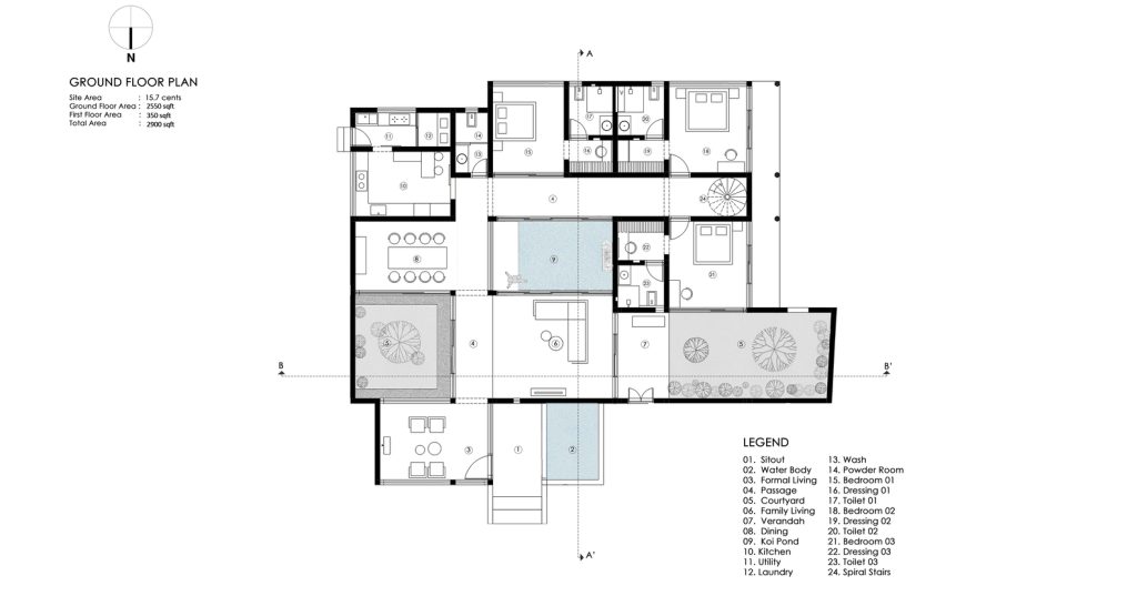
    Tucked away in the quiet Retreat landscape of Arimbur, Thrissur, Nivriti unfolds as a residence that is equal parts retreat and homecoming. Designed for an NRI family who inhabits it briefly each year, the house was conceived as a sanctuary inviting in its warmth, yet secure and grounded in its setting.

    Inside This Quiet Retreat: Where Architecture Meets Serenity | i2a Architects Studio

    quiet retreat

    quiet retreat

    A Flowing Spatial Sequence

    The planning draws strength from its openness. Spaces are composed as a series of flowing sequences rather than isolated rooms. Living, semi-private, and private areas are linked Quiet Retreat by transitional corridors, each revealing a courtyard or garden pocket along the way.

    quiet retreat

    quiet retreat

    Green Voids as Living Lungs

    These green voids function as lungs of the home, channeling air, light, and calmness into the interiors. Every threshold is an invitation Quiet Retreat to pause, reinforcing the intimate relationship between house and landscape.

    quiet retreat

    quiet retreat

    Craft Meets Contemporary Design

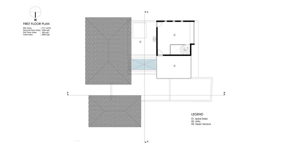
    Craft and tradition enrich the contemporary spatial character. Floors patterned with Athangudi tiles bring vibrancy underfoot, their intricate Quiet Retreat motifs echoing the cultural lineage of South India. A winding spiral staircase introduces a sculptural moment within the home, an upward journey culminating in a timber-lined attic, where the material warmth transforms the atmosphere into one of quiet retreat.

    quiet retreat

    quiet retreat

    Material and Landscape in Dialogue

    Inhabitation is further elevated by the dialogue between material and landscape. Timber-framed windows and sliding doors blur boundaries, dissolving the line between garden and living space. Stone-clad walls, in contrast, assert permanence and grounding, while slatted wooden screens filter sunlight, lending privacy without denying openness. 

    quiet retreat

    quiet retreat

    The interiors breathe with restraint: patterned floors anchor the living areas, while soft furnishings and crafted details layer in warmth and tactility.

    quiet retreat

    quiet retreat

    The architecture of Nivriti is not about spectacle but about balance. It negotiates openness with seclusion, modern comforts with traditional craft, and the ephemeral qualities of light and air with the enduring solidity of stone and timber. In doing so, it becomes more than a holiday home.

    It becomes a place of return, rest, and rootedness, a personal sanctuary in Thrissur that welcomes its family each year with the quiet assurance of belonging.

    Fact File

    Designed by: i2a Architects Studio

    Project Type: Residential Architecture Design

    Project Name: NIVRITI 2.O House

    Location: Thrissur, Kerala

    Year Built: 2025

    Built-up Area: 2900 sqft

    Principal Architects: Ar. Manuraj C R, Ar. Sanjukta Chakraborty

    Photograph Courtesy: Justin Sebastian

    Civil Work: Mahesh P. S. Vallachira

    Building Material: Xteria Designs

    Interior Contractors: Wood Spot, VITRIFIED TILES, ATHANGUDII TILES, VENDOR-D squarez

    Landscape Execution: Poornima Home decors

    Sanitary Wares: Jaquar

    Home Automation: CRP Automation

    Interior Styling: YELLOW PETALS

    Lighting: LUXONITE LIGHTING

    Source: Archdaily

    Firm’s Website Link: i2a Architects Studio

    The Firm’s Instagram Link: i2a Architects Studio

    Firm’s Facebook Link: i2a Architects Studio

    For Similar Project >>> This Traditional Kerala House in Thrissur Frames the Verdant Countryside

    This East Facing Home Finely Represents Modern Sensibility And Timeless Materials | Arcline Architects

    Rooted in a newer extension of the vibrant city of Ahmedabad, this abode represents a fine tune of modern design sensibility with timeless material expression and spatial volumetric connections. A home for a family of 4 which balances openness with privacy, functionality with aesthetics and luxury with warmth. The physical orientation of the east facing […]

    Read More

    This Balinese Home Design Blends The Spirit Of A Clean And Modern Palette | Lab A+U Studio

    Perched gracefully along the edge of a manicured golf course, this C-shaped weekend retreat blends the spirit of Balinese home design architecture with a clean, modern palette. Designed as a sanctuary for rest and reconnection, the home opens inward and outward simultaneously—embracing a central courtyard while framing uninterrupted views of the fairway. This Balinese Home […]

    Read More

    This Home On An East Facing Plot Has A Strong Visual Identity That Stands Out | a+me Architects

    Located in HMT Layout, Bangalore, Isha_Srinidhi Nilaya stands as a multi-generational home designed on a compact 60×40 ft (2400 sq. ft) East facing plot, with a total built-up area of 8000 sq. ft. East Facing a lush public park, the residence responds to its urban setting through a layered design that balances privacy with a […]

    Read More

    Simple Living Amidst A Modest And Simple Home Is The Highlight Of This House | Thomas Parambil Architects

    Located close to the historically-rich South Indian city of Mysuru, Solum embodies the endeavour towards living simply and close to nature. The client hails from a business background and yet harbours a fondness for the modesty and simplicity of an agrarian lifestyle. The young entrepreneur had always dreamt of developing a full-fledged farm self-sufficient in […]

    Read More

    Nestled In An Ecological Environment, Eden Moss Tells A Story Of Purity | Urbane Ivy

    “Even within the smallest green lies all the purity and freshness of Eden.” This idea became the seed for Eden Moss, a home nestled in an ecological environment and imagined as a breath of freshness, evoking the scent of mud after rain, and seamlessly intertwined with nature while still embracing comfort and contextual charm. Nestled […]

    Read More

    This Home With An Earthen Design Opens Out To Lush Farms Outside And Cosy Interiors Inside | Bhutha Earthen Architecture Studio

    Adorn, a home filled with earthen design and the laughter of a family of four, nestles in the peaceful neighborhood of Selvapuram, Coimbatore. “On one side, it shares boundaries with cozy family homes; meanwhile, the other side opens to expansive fields dotted with tall trees.” The fresh air scented with greenery sets a calming atmosphere […]

    Read More

    15 Courtyards in Houses: Designing Tranquil Spaces That Elevate Homes

    Timeless architectural features, such as courtyards, are always associated with bringing the naturally public forms to the world’s heart, building the most peaceful, secluded outdoor areas. These outdoor spaces maximize the living experience with their private space feature, which gives one the option for leisurely relaxation, recreation, or gardening. Furthermore, it has also been a […]

    Read More

    Farmhouse Designs in India: 15 Inspiring Styles To Know

    The Indian farmhouse accommodation goes on to capitalize on a mature evolutionary synthesis of ancestral aesthetics and contemporary features. With this, the outside and the inside of farmhouses became places of comfort with nature. In this blog, we delve into 15 incredible farmhouse designs that entail a harmonious blending. While they exhibit different spaces in […]

    Read More

    This Tropical Home Design Features A Striking Sloped Terracotta Roof In Kerala | Vriksha Architects

    Aangan is a modern residence that seamlessly integrates with the lush environment of Kerala, showcasing a tropical home design. Designed to embrace the region’s warm climate, the house features a striking sloped terracotta roof at varying levels, enhancing both its aesthetic appeal and functional efficiency. The structure is enveloped in a vibrant tropical landscape, adorned […]

    Read More

    50 Indian Door Design For Main Door To Enhance the Curb Appeal

    The door design for main door is a defining feature of any Indian home, embodying both style and cultural significance. In a country rich with diverse architectural traditions, the entrance to your home reflects not only personal taste but also cultural heritage. Whether you’re drawn to the intricate carvings of traditional Indian door designs or […]

    Read More
  • This Balinese Home Design Blends The Spirit Of A Clean And Modern Palette | Lab A+U Studio

    A Guide to AC Repair vs. Replacement for San Antonio Homeowners