search
  • TODD Residence – An Ultra-Rich Contemporary House | Cityspace’82 Architects

    TODD Residence – An Ultra-Rich Contemporary House | Cityspace’82 Architects

    This splendid milestone located in the hustle and clamor of Gurugram appears extremely distinct amongst all the neighboring undertakings in the vicinity. The client’s brief was quite candid for this stunning synthesis where he desired a home that reflected minimalism at its absolute best while converging with the sky. The notion was to design a house with robust attributes and voluminous light-filled living spaces including comfortable reading nooks and unique indoor/outdoor seating areas.

    Visit: Cityspace’82 Architects

    The house is completely based upon the zero maintenance concept. The boundary wall is treated with dry stone cladding delineating a glamorous detail where the slab was scooped out to boast stellar like profiles giving out an illusion of bent stones. Gate is one of the most utilized elements is installed in porcelain, a scratch-resist and water, and termite-proof medium, aiding to the longevity and zero-maintenance characteristic. The driveway acquires an array of integrated directional lighting while also acting as mood lighting at night.

    The facade was installed by omitting smaller cubes from the bigger ones providing the building with openings and punctures which allowed natural light to touch every corner of the house. A terrace in the form of a cantilever renders a floating powder-coated aluminum web, which forms to be the most dramatic feature. The cantilever is designed to be 3 m wide in to accommodate small gatherings/parties.

    The convergence of the building with the sky was achieved by the use of Fibre Optics lighting integrated with the white painted wall on the front facade which grants it a glistening effect of twinkling stars with different intensities. In fact, this sumptuous residence becomes the first one in India to confer onto fiber optics being used in the facade. The house unveils two scenes where on the days of festivals or parties the complete house can be lit with planter lights, fiber optics, lights from art installations via a single control.

    One enters the house through a stilt floor which atypically assimilates vibrant landscaping instead of car parking. The car park is mostly managed at the rear of the house, allowing the house to savor openness and breeze from the landscape design. The double-height entrance and immense main door exemplify the grandeur and larger than life luxurious lifestyle of the inhabitants. This entrance, embellished with a water reservoir integrating stepping stones and champak tree serves as the masterful spectacle. The chic zinc panels here perfectly complement the metal facade. 

    This prepossessing expanse also incorporates an elegant waiting area facing towards the front garden. Services including electrical, Genset & UPS rooms, laundry cum ironing room, and servant block are also planned at the rear of the stilt floor so that there occurs no jeopardy with the privacy of the users. A service staircase is tailored here in order to bring in the hospitality design concept where housekeeping, maintenance, and other services are segregated from the main entry.

    The basement while forming a perfect air for partying and rejuvenating acquires two guest bedrooms, a spectacular pool, spa and a gymnasium, bestowing a sense of gratification. Two sunken gardens smartly engineered here ensure ample ventilation and natural light for  pool and spa at the rear and bedrooms and gym at the front

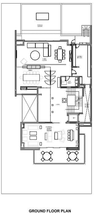
    Moving towards the ground floor, the layout comprises of living area, a formal drawing room, family lounge with kitchen, dining and powder room. Inspired by the hospitality design concept, the kitchen is connected to the service staircase granting privacy to the residents. Meandering with the design towards the first floor which constitutes three magnificent bedrooms with attached toilets and walk-in closets. The second floor embodies a master bedroom, a kids room and a lounge. The floor possesses a connotation of a pellucid view of the terrace garden from the lounge and the room, both through glass façade.

    All the shafts, balconies and gardens are connected to the service staircase for easy maintenance. Passive strategies were introduced through the use of cavity walls with insulation material like vermiculite, thermal break fenestrations with high-performance dgu glass, monolithic spray puff on the terrace for insulation purposes, horizontal and vertical shading devices and on-grid solar panels at terrace level. Also, the materials used in the façade were zero maintenance. Every toilet had private greens which gave a wider appearance to the toilets while allowing abundant natural light and ventilation.

    Serving as an ideological retreat – an intergenerational home for social events with loved ones to harvest enduring recollections, Todd House has been built as a benchmark conducive to the experience and aesthetics of a luxurious residence.

    FACT FILE:

    Firm: Cityspace’82 Architects

    Name: Todd Residence

    Area: 1000 Sq. Yds.

    Location: Gurgaon, India

    Completion Year: 2015

    Interior Design Courtesy: Mr Zafar Choudhary- Habitat Architects

    Photo courtesy: Mr Shiv Prakash- Easy Homes

    ABOUT FIRM:

    Having experience of almost two decades, Sumit has single-handedly nurtured this firm and given it a position where it stands today. His architect father Satish Dhawan worked with CPWD and had a great exposure of the International Market. Having said that, he has done projects for politicians, bureaucrats, lawyers, the residence of famous Yuvraj Singh and Gautam Gambhir. Also, his work is appreciated by developers whom he has collaborated with: DLF, Ansal Group, Orchid, Mgf are to name a few. 

    Website: http://www.cityspace82.com/

    Facebook: https://www.facebook.com/cityspace82Architects

    Instagram: https://www.instagram.com/cityspace82_architects/

    This Circular Building Is Conceived As Civic Institution Beyond A Library | Studio Infinity

    In a landscape where aspiration quietly waits, Granthalay emerges as a circular building and sanctuary for learning—gathering people, knowledge, and place into a shared civic moment. Granthalay is conceived as a civic institution that extends beyond the conventional idea of a library, responding to the acute lack of educational and community infrastructure in the district […]

    Read More

    An Old Manor House Was Refurbished To A Retirement Home | Chinthaka Wickramage Associates

    A dilapidated old manor house in Jaffna peninsula, with warped roof beams, warped door windows and many structural defects were presented to the architects for refurbishment- by clients- to be refurbished as a retirement home for themselves who were returning to Sri Lanka after escaping to overseas due to the 25 years old North East […]

    Read More

    This Modest Home Remains Simple And Emotionally Grounded | Studio Emphasis

    This residence is a sincere exploration of how architecture can remain simple, climate sensitive, cost-effective, and emotionally grounded, without compromising on spatial quality or design intent. Conceived as a 3BHK modest home for a small family, the project stands as a testament to what is possible when thoughtful planning, craft-oriented construction, and material intelligence come […]

    Read More

    The Balanced Aesthetics Of This Pune Home Respects Privacy While Creating A Design Story | Archos

    Design, when it emerges as a living tapestry, turns the experience of living into a vibrant everyday narrative. Baldota House in Alandi, Pune by ARCHOS accommodates three generations under a single roof in the area spanning 7500 Sq. Ft. Spearheaded by the family’s desire for a generous space and a theatrical essence along with balanced […]

    Read More

    Designed With A Monochromatic Palette, This Home Brings A Touch Of Nature | SSDA Architects

    Few homes are celebrated for their iconic interiors, while some are celebrated for their open layouts. True to its unique context and subtleties, this home with a monochromatic palette, designed by Ar. Saumya Khanna & Ar. Sudhir Ambawata Co – founders & principle architects of SSDA Architects brings the essence of volumetric design and a […]

    Read More

    The Bamboo Pavilion Adopts A Sustainable Living Approach In Today’s Time | Lyth Design

    Adopting sustainable living today, both in design and daily life, is crucial for reducing our environmental footprint and preserving resources for future generations. In the design of this bamboo pavilion, this means using eco-friendly materials, energy-efficient technologies, and creating spaces that harmonize with natural surroundings. In daily living, sustainability involves mindful consumption, reducing waste, conserving […]

    Read More

    Nestled Amidst Lush Landscape Aashiyana Balances Craft And Context | Srijit Srinivas Architects

    Tucked into the lush landscape of Thiruvananthapuram, Aashiyana is a residence that balances context, climate, and craft. Designed by architect Srijit Srinivas, this bungalow is conceived as more than a tropical retreat-it is a spatial journey where bold colour, filtered light, and thoughtful materials orchestrate a distinctive atmosphere. Nestled Amidst Lush Landscape Aashiyana Balances Craft […]

    Read More

    This Residence Was Conceived As An Inward-Looking Sanctuary For A Family Of Four | The Insideout Studio

    Situated on a compact 1200 sft south-west corner plot, this residence was conceived as an inward-looking sanctuary for a family of four — a home that balances privacy and openness, light and enclosure, within the dense urban fabric. This Residence Was Conceived As An Inward-Looking Sanctuary For A Family Of Four | The Insideout Studio […]

    Read More

    Open Spaces Within This Building Break Away The Rigid Boundaries Of This Residence | The Purple Ink Studio

    Project 1374 is located in one of the plotted developments in the north of Bangalore, characterized by well-demarcated plots, open spaces, spacious roads, and organized infrastructure. Trees flank the wide streets, dividing the plots with dense canopies offering shaded avenues. Abutting the plot stood a cluster of trees- a quiet presence. We borrowed these trees […]

    Read More

    The Design Language Of This Residence Is Typically Associated With Sustainability | Kamat & Rozario Architecture

    ‘Roots’ was an experiment to build sustainably but not confer to the design language typically associated with sustainable buildings. This residential project re-considers the expression of sustainable architecture through a minimalist and materially grounded lens. Located on a 4,000 sq.ft. plot, the designers conceived the house for a family of three and their pet, organizing […]

    Read More
  • 6 Different Types of Welding Helmets Explained

    An Earthy And Luxurious Villa That's All About Nature, Light, And Indulgence | Utopia