search
  • This Home For An Urban Farmer Is Where Slow Living Meets Solitude | Compartment S4

    Court Fort is imagined foremost as a home. It is an everyday retreat on the outskirts of Ahmedabad where slow living meets meaningful solitude. This is conceived as a residence for an urban farmer seeking a life closer to land, seasons, and quiet rhythms. It is a project that reinterprets the idea of a holiday home. Not as a place you escape to occasionally, but a place that allows you to feel “away” every single day. Here, living, resting, growing and even working coexist without conflict. It is a residence first, a place to unwind and reset. And when needed, a gentle home-like workspace that supports focus without disturbing the calm.

    Urban Farmer

    Urban Farmer

    Urban Farmer

    Site

    The site unfolds across four distinct landscapes that collectively shape the experience of home. Over sixty percent of the eastern edge is dedicated to a private farm for the urban farmer, creating a daily relationship with soil, produce and changing seasons, an unusual luxury for contemporary living.

    Urban Farmer

    Landscape

    At the heart of the property lies a natural pond, wrapped in wild greens, forming a climatic anchor and a reflective pause visible from most spaces in the home. To the southwest, a dense forest plantation becomes a world of its own: birdsong at dawn, shifting shadows in the afternoon, and an ecosystem that thrives independent of human presence. Within this expanse sits the built form, quiet, minimal and deliberately non-intrusive. It reveals itself slowly, almost shyly, from behind foliage, allowing the land to take precedence.

    Urban Farmer

    Urban Farmer

    Architecture

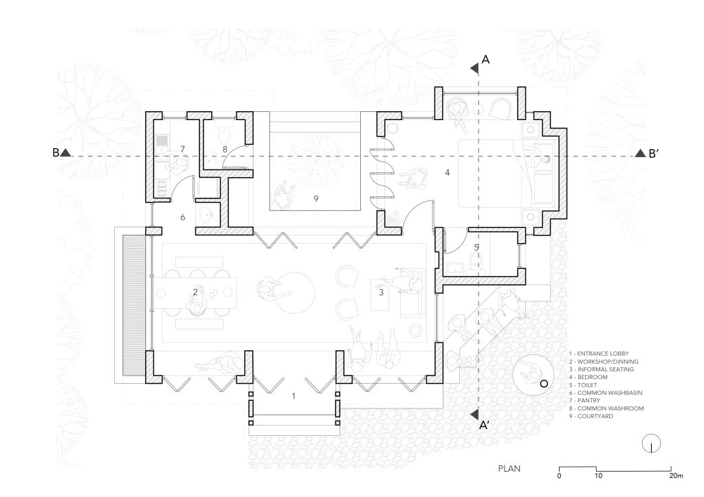
    The architecture is organised as a C-shaped, introverted dwelling that embraces a private courtyard to the south. This courtyard becomes the emotional and spatial centre of the home, a calm void around which daily life orbits. A clear axis connects it to the northern entrance, subtly dividing the main living volume into two parts, an informal lounge on one side and a more structured living-dining space on the other. Together, they create a fluid, open environment that shifts easily between restful leisure and productive focus, embodying the idea of a home that supports work only when one chooses to engage with it.

    Materials

    Materials reinforce the sensibility of a vacation home grounded in nature. Exposed load-bearing brick walls create warm, cocoon-like interiors, while a simple RCC pitched roof settles over the spaces with quiet assurance. Inside, lime-plastered surfaces, red and grey recycled brick, polished concrete floors and black kadappa edging form a palette that is tactile, earthy and easy to live with. Except for the cast-in-situ ledge seating and bed, the furniture is light, movable and adaptable, allowing the home to transform for intimate gatherings, solitary weekends or occasional workshops without ever losing its residential soul.

    Bedroom

    The bedroom, opening toward a fragrant Champa tree in the courtyard, forms the most private zone of the home, a serene retreat that strengthens the project’s essence as a place for rest. Utility spaces, accessible directly from the courtyard, keep the home functional for family life, visiting guests, or extended stays. At the north-west edge, the architecture gently gives way to a small amphitheatre that overlooks the farm. This space invites conversation and community, offering an outward-facing counterpoint to the inward quiet of the courtyard.

    Conclusion

    Ultimately, Court Fort exemplifies a life lived in flow, with nature, with one’s own pace, and with the flexibility of modern living. It is a residence that feels like a getaway, a vacation home for the urban farmer that supports real daily life, and a place where work, when it happens, feels less like a demand and more like a choice. It is at once a home and an away-home, shaped by land, climate and the desire for a more intentional way of living.

    Fact File

    Designed by: Compartment S4

    Project Type: Residential Architecture Design

    Project Name: Court Fort

    Location: Nandoli, Ahmedabad

    Site Area: 1380 Sq. mt.

    Built Area: 125 Sq. mt

    Principal Architects: Aman Amin, Kishan Shah, Manuni Patel, Krishna Parikh, Nishita Parmar, Prasik Chaudhari, Monik Shah & Vedanti Agarwal

    Photograph Courtesy: Dhrupad Shukla

    Contractor: Sanjaybhai Contractor & Team

    Client: Urban Khetti (Tanya Khambolja)

    Firm’s Website LinkCompartment S4

    Firm’s Instagram Link: Compartment S4

    For Similar Projects >> Soothing Color Tones, Minimalistic Aesthetics and Zen Vibe is what Describes this Home

    This Residence Was Conceived As An Inward-Looking Sanctuary For A Family Of Four | The Insideout Studio

    Situated on a compact 1200 sft south-west corner plot, this residence was conceived as an inward-looking sanctuary for a family of four — a home that balances privacy and openness, light and enclosure, within the dense urban fabric. This Residence Was Conceived As An Inward-Looking Sanctuary For A Family Of Four | The Insideout Studio […]

    Read More

    The Design Language Of This Residence Is Typically Associated With Sustainability | Kamat & Rozario Architecture

    ‘Roots’ was an experiment to build sustainably but not confer to the design language typically associated with sustainable buildings. This residential project re-considers the expression of sustainable architecture through a minimalist and materially grounded lens. Located on a 4,000 sq.ft. plot, the designers conceived the house for a family of three and their pet, organizing […]

    Read More

    This Greenery House Design Becomes A Perfect Solution for Wellness and Space | Studio DWS

    This project was planned in between lockdown when the client realized the importance of open space close to nature, aligning with a greenery house design that was required by the client’s aging parents and his young kids. Editor’s Note: Rooted in stillness and shaped by togetherness, this home flows gently between the indoors and nature […]

    Read More

    Spread Across 3 Acres This Home Reinvents Geometry & Material | RENESA Architecture Design Interiors Studio

    The Sanctum in Amritsar, designed by Renesa Architecture Design Interiors Studio, stands as a rare architectural experiment in India. It is an attempt to reinvent the domestic typology through geometry, material, and spatial narrative. Spread over 12,000 sq ft on a generous 3 acres plot, the house positions itself as a contemporary meditation on permanence and […]

    Read More

    Modern Aesthetics And Mindful Design Strike The Perfect Balance In This Home | KD Associate

    Mishti’s House by KD ASSOCIATE  is a striking example of contemporary residential architecture that blends modern aesthetics with mindful design. The facade features a harmonious mix of exposed red brick, smooth white plaster, and wooden-toned vertical fins, creating depth and visual balance. A unique geometric lattice screen with a Buddha motif serves as both a […]

    Read More

    This Home On An East Facing Plot Has A Strong Visual Identity That Stands Out | a+me Architects

    Located in HMT Layout, Bangalore, Isha_Srinidhi Nilaya stands as a multi-generational home designed on a compact 60×40 ft (2400 sq. ft) East facing plot, with a total built-up area of 8000 sq. ft. East Facing a lush public park, the residence responds to its urban setting through a layered design that balances privacy with a […]

    Read More

    15 Courtyards in Houses: Designing Tranquil Spaces That Elevate Homes

    Timeless architectural features, such as courtyards, are always associated with bringing the naturally public forms to the world’s heart, building the most peaceful, secluded outdoor areas. These outdoor spaces maximize the living experience with their private space feature, which gives one the option for leisurely relaxation, recreation, or gardening. Furthermore, it has also been a […]

    Read More

    15 Architecture Fonts Every Architect Should Know

    Architecture font choices go beyond style—they shape how your work is perceived. From portfolios to presentations, the right architecture font instantly communicates clarity, precision, and personality. As architects, we design not just with space but with every detail, including typography. Selecting a strong architecture font shows your commitment to visual storytelling and design consistency. In […]

    Read More

    Farmhouse Designs in India: 15 Inspiring Styles To Know

    The Indian farmhouse accommodation goes on to capitalize on a mature evolutionary synthesis of ancestral aesthetics and contemporary features. With this, the outside and the inside of farmhouses became places of comfort with nature. In this blog, we delve into 15 incredible farmhouse designs that entail a harmonious blending. While they exhibit different spaces in […]

    Read More

    This Tropical Home Design Features A Striking Sloped Terracotta Roof In Kerala | Vriksha Architects

    Aangan is a modern residence that seamlessly integrates with the lush environment of Kerala, showcasing a tropical home design. Designed to embrace the region’s warm climate, the house features a striking sloped terracotta roof at varying levels, enhancing both its aesthetic appeal and functional efficiency. The structure is enveloped in a vibrant tropical landscape, adorned […]

    Read More
  • This Homestay Unfolds As A Dialogue Between Landscape And Legacy | Inside Outside Architects

    Restaurant Design Trend: The Rise of Classical Grand Café Interiors