search
  • The Fluid Design Of This Second Home Is A Stage For A Luxurious Lifestyle | Flow Studio

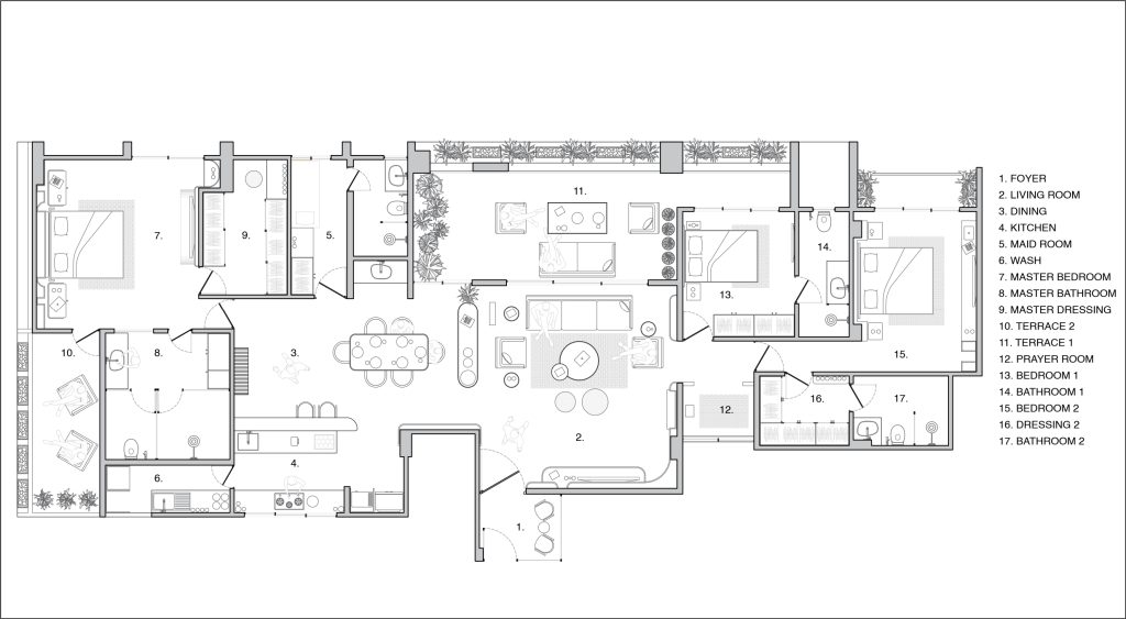
    In an age when life stretches easily across borders, a second home isn’t just a luxury — it’s a lifestyle. For a young Dubai-based couple, originally from Surat, their fluid design vacation apartment was never meant to be a quiet hideaway. Instead, the designers imagined it as a stage for living well — a place where intimacy and exuberance flow together with ease.

    The Fluid Design Of This Second Home Is A Stage For A Luxurious Lifestyle | Flow Studio

    fluid design

    From the very first meeting, their brief stood apart. With a laugh, they confessed: “We don’t have kids, but that doesn’t mean we don’t want large open spaces. We love to host — daily gatherings, sometimes enormous ones — so give us room to breathe.” In the same spirit, they seamlessly integrated their house help’s room — acknowledging the vital role she plays at the heart of their home.

    The Spirit of Escape

    Amid the noise of city life, the designers crafted this apartment as both an escape and a stage — serene in spirit yet deeply social in function. A glass-lined foyer sets the tone, opening into a vast, fluid space where living, dining, and kitchen sit in conversation.

    fluid design

    fluid design

    The sequence extends effortlessly onto a terrace that frames a view of the distant river. Bedrooms anchor either side, balanced but never formulaic — each one with its own quiet character.

    fluid design

    fluid design

    Curves, Calm & Continuity

    The language of the interiors resists rigidity. Instead, walls soften into curves, guiding the eye and inviting movement, adopting a fluid design. An arched doorway gestures toward the prayer room before dissolving back into the living space, blurring lines between function and form. The effect is layered: expansiveness balanced by intimate corners, neutrality enriched by the natural drama of veined stone underfoot.

    A Palette Rooted in Warmth

    The couple’s love for muted taupe became the foundation. In public spaces, it merges with dark walnut veneer and brushed brass, lifted by the soft shimmer of Banswara marble. In the bedrooms, the palette deepens with notes of ebony, creating rooms that are cohesive yet distinct. The overall mood is warm, elevated, and refreshingly unpretentious.

    Craft, Character & Provenance

    Details became the quiet storytellers here. Accent furniture from popular brands holds its own against artisanal touches: Jaipur rugs underfoot, custom in-situ lights casting shadows, murals layered with texture. Each piece was chosen for how it feels, not just how it looks — grounding the space in a tactile sense of comfort.

    The Essence of Home

    More than a vacation apartment, what emerged is a philosophy — of openness and warmth. It’s a home designed for laughter-filled evenings as much as solitary pauses, a home that embraces conviviality without sacrificing serenity. At its core, it is about belonging: to a space, to each other, and to life lived fully.

    Fact File

    Designed by: 
    Flow Studio

    Project Type: Residential Interior Design

    Project Name: Overseas Inhabitance

    Location: Surat, Gujarat

    Year Built: 2025

    Duration of the project: 9 Months

    Project Size: 2124 Sq.ft

    Principal Architects: Ar. Vishnu Jadia & Tasnim Jadia

    Photograph Courtesy: frames.n.spaces

    Products:  Lighting – Littoria / Kitchen – Maruti Kitchens / Air-conditioning – Samsung / Sanitary – Kohler India / Curtains – D’Decor / Carpets – Jaipur Rugs & Decora Inc.

    Firm’s Instagram Link: Flow Studio

    For Similar Project >> The Minimalist Design Gives A Feeling Of Simplicity And Sophistication

    A Playful Colour Pop In This Contemporary Home Makes It Stand Out | Informé Designs

    Where Contemporary Elegance Meets Colour-Pop Charm Nestled in the heart of the city, this elegantly designed 3BHK residence by informe designs  is a celebration of balance  where contemporary sophistication is effortlessly layered with playful colour-pop elements. The result is a home that is not only visually stunning but also deeply personal and welcoming. Informé Designs […]

    Read More

    This Apartment Highlights A Practical Layout Allowing Flexibility And Ease Of Flow | emjayes Multidisciplinary Studio

    Designed for a family of four, this 3BHK apartment strikes a balance between openness and functionality. “The client presented a straightforward brief, rich with intent—design an open furniture layout in the common areas to allow flexibility, and create bedrooms that maximise storage while maintaining clarity and ease of flow.” The design approach, therefore, was to […]

    Read More

    The Fluid Design Of This Second Home Is A Stage For A Luxurious Lifestyle | Flow Studio

    In an age when life stretches easily across borders, a second home isn’t just a luxury — it’s a lifestyle. For a young Dubai-based couple, originally from Surat, their fluid design vacation apartment was never meant to be a quiet hideaway. Instead, the designers imagined it as a stage for living well — a place […]

    Read More

    A Vibrant Home With Sparse Furnishing And Lively Spaces Sits Comfortably In Pune | Agneya Designs

    Located in Baner, Pune in an up-and-coming neighborhood is the 3-bedroom residence housing the Kulkarni family. The vibrant home is an intimate space and has been designed as such with sparse furnishing and bright, lively touches. While the living and dining areas remain light-filled and anchored by a beautiful breakfast bar perfect for hosting, the […]

    Read More

    This Balcony View Apartment In Surat Serves A Lavish And Comfortable Feel | Studio 3 Point

    It is a 2000 Sq. Ft. 4bhk residential flat’s interior project at Surat. it’s one of our most special project because form very beginning, our client Mr. Jayesh Bhai Naik and his wife Mrs. Sonal Naik gave us full freedom to design and execute. They allowed us to showcase our creativity. It was naked flat […]

    Read More

    This Ultra Modern Home Stands Out For Its Clean Lines And Thoughtful Planning | Espela Interiors

    What makes House of Heart stand out isn’t a new gadget or flashy material, it’s the intention. Most homes today want to look perfect; this ultra modern home wants to feel perfect in the way comfort and memory make you feel perfect. This Ultra Modern Home Stands Out For Its Clean Lines And Thoughtful Planning […]

    Read More

    This Apartment With A Flexible Layout Is Free Flowing And Full Of Light | Elemental

    In the monsoon of 2023, our client came to us with a newly purchased 3 bedroom apartment of the recently launched Prestige Hillside Gateway Apartments in Kakkanad, Kerala. Similar to most apartments, this one too had limitations in space in terms of a flexible layout. On our first visit, the main requirement that our client […]

    Read More

    Pastel Colors Add A Grounded Calmness In This Mumbai Home | TS Design Works

    The 36th Horizon offers a sweeping view of Mumbai’s ever-evolving skyline from its position as a mindful high-rise retreat perched on the 36th floor. Framing the chaos of the city in soft silence, this home covered in pastel colors strikes a delicate balance where urban energy stays outside, and a warm, grounded calmness thrives within. […]

    Read More

    This Modern House Interior Design Tells a Story of Creativity And Individuality| RD Architects

    In the modern house interior design of this residence, every detail tells a story of creativity and individuality. The contemporary wooden door, features exquisite black glass that adds a touch of drama and allure to the entryway, and a central metal rod accent in the safety door between those arches embraces the perfect blend of […]

    Read More

    20 Designs For Kitchen Window Over Sink In India Homes

    When it comes to enhancing the kitchen window over the sink, various design ideas are possible to decorate Indian homes. From rooted in tradition to Western-style modular kitchens offer both functionality and attractive aesthetics. Apart from the sleek profile and raised breakfast counter, the kitchen window over sink is another spot to add appeal and […]

    Read More
  • How Living Room Tile Trends Influence Bathroom Design?

    This Apartment Highlights A Practical Layout Allowing Flexibility And Ease Of Flow | emjayes Multidisciplinary Studio