search
  • This Jewellery Showroom Is A Sculptural Building Enveloped By Terracotta | Studio UF+O

    On the high streets of Indian cities, retail jewellery showroom often compete for attention. They do so with gleaming chandeliers, advertisement boards, and ornate façades. Fluted Volume, the 7,000 sq. ft. headquarters for a jewellery brand in Vijayawada, takes a radically different stance. Vineet Vora and Prachi Parekh of Studio Urban Form + Objects are the designers of this building. It asserts itself as a terracotta-hued monolith: at once sculptural, reticent, and quietly authoritative amid the cityscape. Its form emerges from a paradox that lies at the heart of the brief. How to create a building that must be visible to the public, invite footfall, and embody the brand’s identity.

    This Jewellery Showroom Is A Sculptural Building Enveloped By Terracotta | Studio UF+O

    jewellery showroom

    jewellery showroom

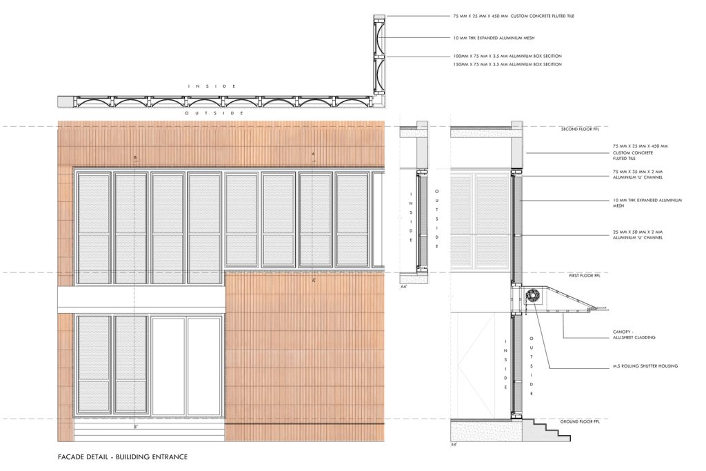
    Studio UF+O’s response was a façade that is neither opaque nor transparent, but something in between. Developed through rigorous prototyping, the complete external form, which very precisely draws in natural light through its fenestrations, is clad in custom-cast ceramic concrete flutes in a matte terracotta finish. These non-orthogonal modules repeat in rhythmic succession, lending the building a sculptural presence that resists the commercial gloss expected of a jewellery store.

    jewellery showroom

    jewellery showroom

    The Design

    “It was important to create an architecture that spoke of permanence and identity,” says Vineet. “Not a glossy layer, but something that feels as if it belongs to the city.” The play of light and shadow across the flutes lends the surface a dynamic quality, allowing the building to shift character through the day, while the openings are carefully oriented to the north and east to draw in light without exposing the interiors to glare or heat. The glazed surfaces are shielded with an external skin of expanded fluted aluminum mesh, adding a layer of impenetrability while controlling the incident sunlight. 

    jewellery showroom

    The Layout

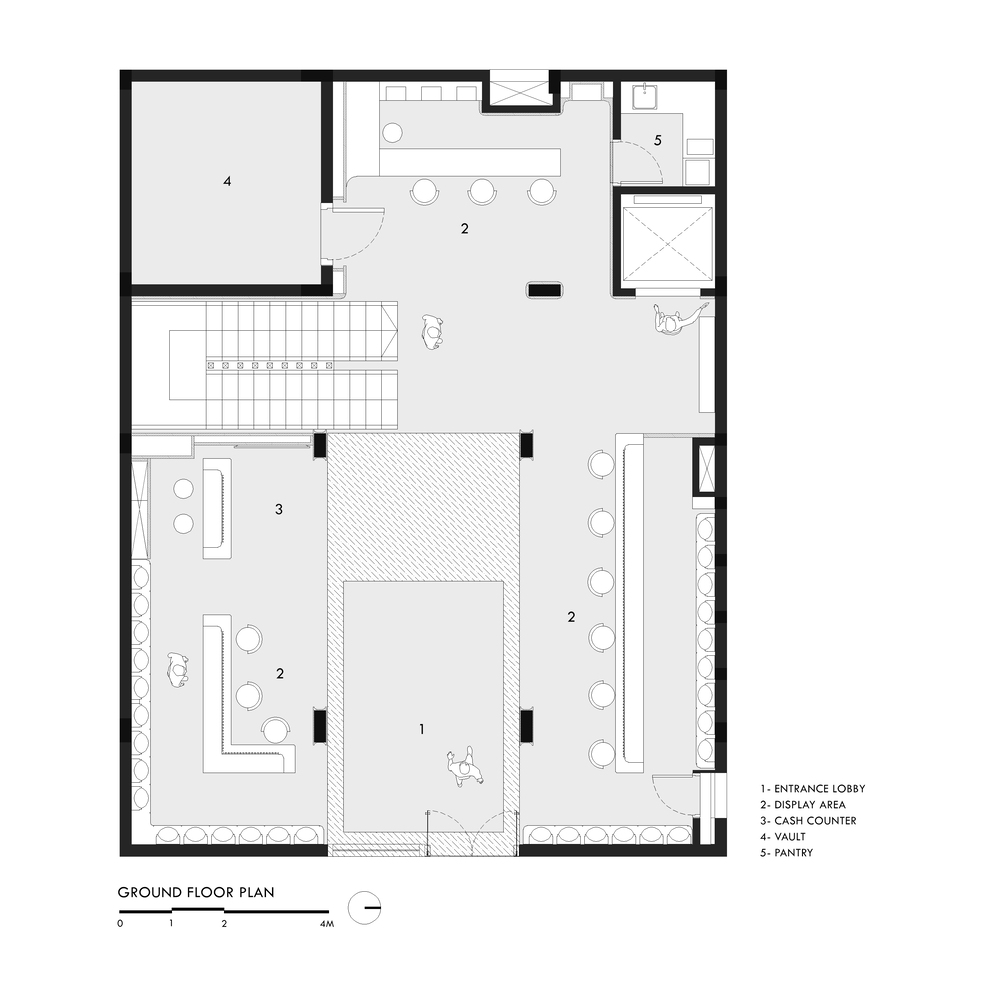
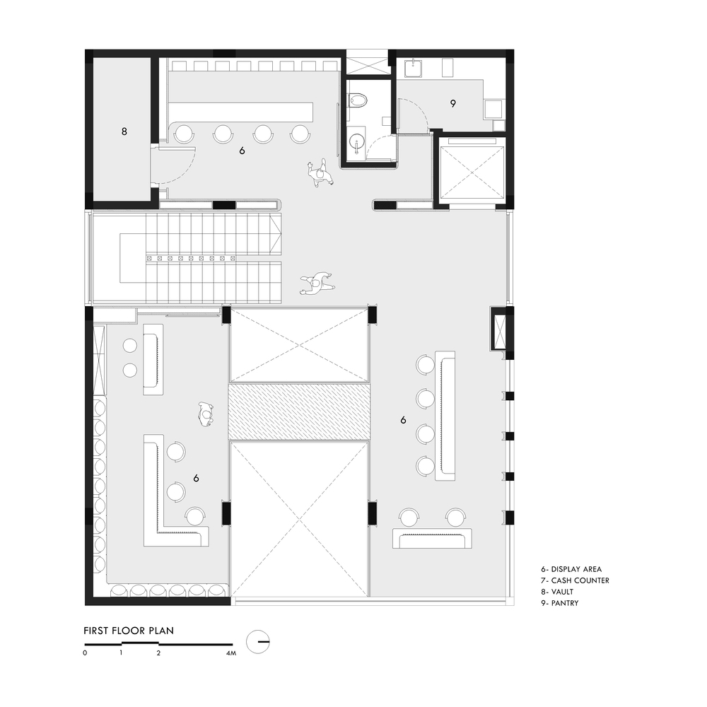
    Inside, the program is arranged with heavy footfall functions such as display areas, circulation, and cash counters at the base, and more exclusive functions, rendered in a monochrome beige palette, with VIP lounges and workspaces as one moves upward. The terrace discreetly conceals a secure gold-melting furnace. The plan responds as much to ritual and flow as it does to function. Vaults and high-security operations are placed to the rear, while public access areas occupy the front. Movement through the building feels choreographed, with transitions calibrated to balance visibility, intimacy, and control all at once.

    jewellery showroom

    Natural Light

    Natural light becomes the true protagonist of the interior. A double-height void, aligned to Vaastu principles, pulls daylight deep into the plan through a skylight, thereby opening the inside visually. A staircase on the south side of the building, supported by ceramic glass bricks, refracts and scatters the light, producing a sense of lightness against the gravity of the monolithic exterior. “It was about allowing a little surprise,” Prachi notes. “A moment where the architecture feels unexpectedly delicate.” This moment of radiance transforms what might otherwise have been a heavily secured interior into a luminous, uplifting environment.

    jewellery showroom

    The Exterior

    The fluted vocabulary of the exterior also extends inside, into partitions, flooring, and display backdrops, thereby tying the brand’s architectural identity to its jewellery collections. The consistency between inside and outside resists the idea of architecture as a mere container, instead proposing a cohesive spatial language where building and brand read as one.

    jewellery showroom

    Problem Solving

    Yet Fluted Volume is not only an act of design but also of perseverance. With streets on three sides, the site remained in full public view during construction, drawing unsolicited commentary from acquaintances and passersby who expected chandeliers and shiny surfaces.

    jewellery showroom

    The Structure

    The quiet, monolithic form invited skepticism, even pressure to conform to local expectations. “What makes this project unique is that it survived the noise, the influences, and the temptations to dilute the vision,” recalls Prachi. “In the end,” adds Vineet, “the city that doubted it has claimed it as its own, affectionately calling it ‘The Red Fort’.”

    Conclusion

    In that sense, the project’s achievement is not only in reconciling the competing demands of security, visibility, and function. Its deeper triumph lies in how it holds its ground: a sculptural landmark that refuses spectacle yet asserts its presence, offering a new architectural language for jewellery retail in India.

    Fact File

    Designed by: Studio UF+O

    Project Type: Jewellery Showroom

    Project Name: Fluted Volume

    Location: Vijayawada, Andhra Pradesh

    Built-up Area: 7000 sqft

    Principal Architects: Vineet Vora & Prachi Parekh

    Photograph Courtesy: Vivek Eadara

    Source: Archdaily

    Firm’s Website Link: Studio UF+O

    Firm’s Instagram Link: Studio UF+O

    For Similar Project >>> Jewellery showroom Design Enhanced Through The Idea Of Minimalist Luxury

    Spread Across 3 Acres This Home Reinvents Geometry & Material | RENESA Architecture Design Interiors Studio

    The Sanctum in Amritsar, designed by Renesa Architecture Design Interiors Studio, stands as a rare architectural experiment in India. It is an attempt to reinvent the domestic typology through geometry, material, and spatial narrative. Spread over 12,000 sq ft on a generous 3 acres plot, the house positions itself as a contemporary meditation on permanence and […]

    Read More

    Modern Aesthetics And Mindful Design Strike The Perfect Balance In This Home | KD Associate

    Mishti’s House by KD ASSOCIATE  is a striking example of contemporary residential architecture that blends modern aesthetics with mindful design. The facade features a harmonious mix of exposed red brick, smooth white plaster, and wooden-toned vertical fins, creating depth and visual balance. A unique geometric lattice screen with a Buddha motif serves as both a […]

    Read More

    This Renovated House In Gurugram Has An Inward Looking Courtyard | Studio Juggernaut

    Our urban landscapes are undergoing a rapid transformation, pressured by burgeoning populations and increasing demands on city infrastructure. To address these escalating challenges, urban planners continually revise zoning regulations. In Delhi, for instance, a significant regulatory change introduced mandatory stilt parking on small urban lots with four habitable floors above. Gurugram, a satellite city, subsequently adopted […]

    Read More

    This Home On An East Facing Plot Has A Strong Visual Identity That Stands Out | a+me Architects

    Located in HMT Layout, Bangalore, Isha_Srinidhi Nilaya stands as a multi-generational home designed on a compact 60×40 ft (2400 sq. ft) East facing plot, with a total built-up area of 8000 sq. ft. East Facing a lush public park, the residence responds to its urban setting through a layered design that balances privacy with a […]

    Read More

    15 Courtyards in Houses: Designing Tranquil Spaces That Elevate Homes

    Timeless architectural features, such as courtyards, are always associated with bringing the naturally public forms to the world’s heart, building the most peaceful, secluded outdoor areas. These outdoor spaces maximize the living experience with their private space feature, which gives one the option for leisurely relaxation, recreation, or gardening. Furthermore, it has also been a […]

    Read More

    15 Architecture Fonts Every Architect Should Know

    Architecture font choices go beyond style—they shape how your work is perceived. From portfolios to presentations, the right architecture font instantly communicates clarity, precision, and personality. As architects, we design not just with space but with every detail, including typography. Selecting a strong architecture font shows your commitment to visual storytelling and design consistency. In […]

    Read More

    Farmhouse Designs in India: 15 Inspiring Styles To Know

    The Indian farmhouse accommodation goes on to capitalize on a mature evolutionary synthesis of ancestral aesthetics and contemporary features. With this, the outside and the inside of farmhouses became places of comfort with nature. In this blog, we delve into 15 incredible farmhouse designs that entail a harmonious blending. While they exhibit different spaces in […]

    Read More

    This Tropical Home Design Features A Striking Sloped Terracotta Roof In Kerala | Vriksha Architects

    Aangan is a modern residence that seamlessly integrates with the lush environment of Kerala, showcasing a tropical home design. Designed to embrace the region’s warm climate, the house features a striking sloped terracotta roof at varying levels, enhancing both its aesthetic appeal and functional efficiency. The structure is enveloped in a vibrant tropical landscape, adorned […]

    Read More

    50 Indian Door Design For Main Door To Enhance the Curb Appeal

    The door design for main door is a defining feature of any Indian home, embodying both style and cultural significance. In a country rich with diverse architectural traditions, the entrance to your home reflects not only personal taste but also cultural heritage. Whether you’re drawn to the intricate carvings of traditional Indian door designs or […]

    Read More

    50 Best Pillar Design Ideas And Inspirations For Indian Spaces

    Pillar design is a cornerstone of architectural elegance, seamlessly blending structural support with aesthetic appeal. Our blog, “50 Best Pillar Design Inspirations,” celebrates this essential element, showcasing a variety of styles from classical Doric and Ionic to contemporary and avant-garde innovations. Whether you’re an architect, interior designer, or a design enthusiast, these pillar design inspirations […]

    Read More
  • Inspired By Portuguese Architecture, This Goan Home Was Built A Century Ago | Paul Rodrigues

    This Pizzeria With Lush Landscape Blossoms Into A Soulful Retreat | Hiren Patel Architects