search
  • Sarpanch House | Neogenesis+Studi0261

    Sarpanch House | Neogenesis+Studi0261

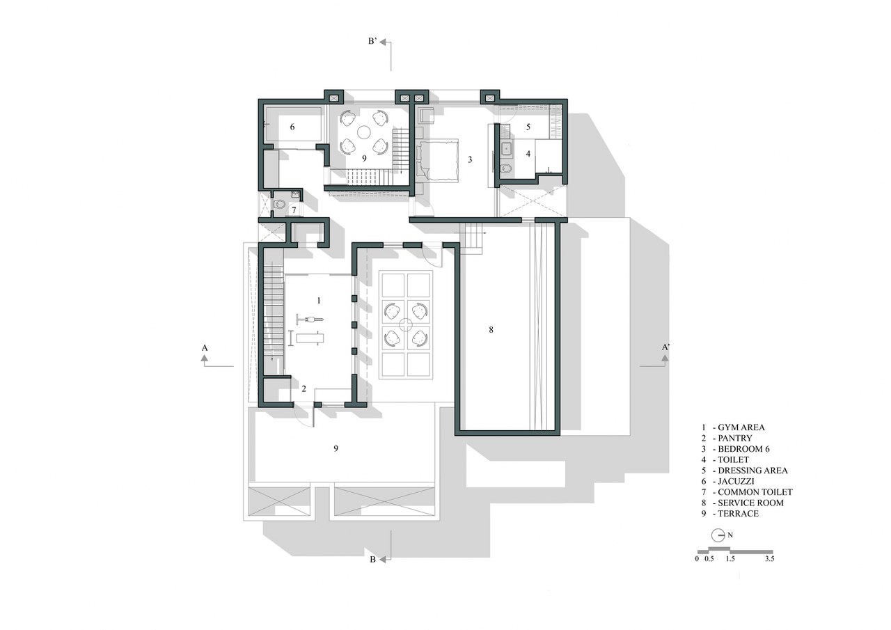
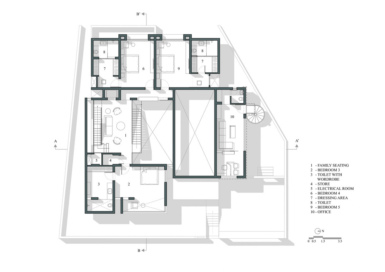
    Situated in a small village called Talangpore, this iconic and introvert abode is designed keeping in mind the profession of the dweller. Context of the house resemble a very rural set up, sharing a common wall with cow shed, an open ground for pasture on other side and opposite side being old traditional houses. Head of the family being Sarpanch (head) of the village gave a very brief requirement how the structure should stand out from the surrounding as well as privacy of the house should be maintained.

    visit: Neogenesis+Studi0261

    The divergence of the massing is created through dead cubes and powder coated wood finished aluminum pipes as screen. This adds to the overall massing without compromising on view and ventilation. These masses which are vivid in nature yet are co-existing ideally, articulate the function of house forming a volumetric elevation.

    The organization of spaces on ground floor revolves around the central courtyard, creating an indifferent entry on other side of living room for the office space on level above. The elemental tranquil coil like staircase creates a unique humor as one enters though the main gate. The humor of this staircase continues as viewed from living room, in a way that during transition the privacy of the family is unhindered. Contemporary needs and rural context helped to frame the color palette of the house. Earthy tones and exquisite furniture intermingles to create a unique outlook.

    FACT FILE:

    • Architect In Charge: Chinmay Laiwala, Jigar Asarawala, Tarika Asarawala
    • Design Team: Harsh Gonawala, Rohan Khatri, Janki Gonawala
    • Site Manager: Denish Mistry
    • Text Credits: Yashvi Kapadia
    • Source: Archdaily

    This Circular Building Is Conceived As Civic Institution Beyond A Library | Studio Infinity

    In a landscape where aspiration quietly waits, Granthalay emerges as a circular building and sanctuary for learning—gathering people, knowledge, and place into a shared civic moment. Granthalay is conceived as a civic institution that extends beyond the conventional idea of a library, responding to the acute lack of educational and community infrastructure in the district […]

    Read More

    An Old Manor House Was Refurbished To A Retirement Home | Chinthaka Wickramage Associates

    A dilapidated old manor house in Jaffna peninsula, with warped roof beams, warped door windows and many structural defects were presented to the architects for refurbishment- by clients- to be refurbished as a retirement home for themselves who were returning to Sri Lanka after escaping to overseas due to the 25 years old North East […]

    Read More

    This Modest Home Remains Simple And Emotionally Grounded | Studio Emphasis

    This residence is a sincere exploration of how architecture can remain simple, climate sensitive, cost-effective, and emotionally grounded, without compromising on spatial quality or design intent. Conceived as a 3BHK modest home for a small family, the project stands as a testament to what is possible when thoughtful planning, craft-oriented construction, and material intelligence come […]

    Read More

    The Balanced Aesthetics Of This Pune Home Respects Privacy While Creating A Design Story | Archos

    Design, when it emerges as a living tapestry, turns the experience of living into a vibrant everyday narrative. Baldota House in Alandi, Pune by ARCHOS accommodates three generations under a single roof in the area spanning 7500 Sq. Ft. Spearheaded by the family’s desire for a generous space and a theatrical essence along with balanced […]

    Read More

    Designed With A Monochromatic Palette, This Home Brings A Touch Of Nature | SSDA Architects

    Few homes are celebrated for their iconic interiors, while some are celebrated for their open layouts. True to its unique context and subtleties, this home with a monochromatic palette, designed by Ar. Saumya Khanna & Ar. Sudhir Ambawata Co – founders & principle architects of SSDA Architects brings the essence of volumetric design and a […]

    Read More

    The Bamboo Pavilion Adopts A Sustainable Living Approach In Today’s Time | Lyth Design

    Adopting sustainable living today, both in design and daily life, is crucial for reducing our environmental footprint and preserving resources for future generations. In the design of this bamboo pavilion, this means using eco-friendly materials, energy-efficient technologies, and creating spaces that harmonize with natural surroundings. In daily living, sustainability involves mindful consumption, reducing waste, conserving […]

    Read More

    Nestled Amidst Lush Landscape Aashiyana Balances Craft And Context | Srijit Srinivas Architects

    Tucked into the lush landscape of Thiruvananthapuram, Aashiyana is a residence that balances context, climate, and craft. Designed by architect Srijit Srinivas, this bungalow is conceived as more than a tropical retreat-it is a spatial journey where bold colour, filtered light, and thoughtful materials orchestrate a distinctive atmosphere. Nestled Amidst Lush Landscape Aashiyana Balances Craft […]

    Read More

    This Residence Was Conceived As An Inward-Looking Sanctuary For A Family Of Four | The Insideout Studio

    Situated on a compact 1200 sft south-west corner plot, this residence was conceived as an inward-looking sanctuary for a family of four — a home that balances privacy and openness, light and enclosure, within the dense urban fabric. This Residence Was Conceived As An Inward-Looking Sanctuary For A Family Of Four | The Insideout Studio […]

    Read More

    Open Spaces Within This Building Break Away The Rigid Boundaries Of This Residence | The Purple Ink Studio

    Project 1374 is located in one of the plotted developments in the north of Bangalore, characterized by well-demarcated plots, open spaces, spacious roads, and organized infrastructure. Trees flank the wide streets, dividing the plots with dense canopies offering shaded avenues. Abutting the plot stood a cluster of trees- a quiet presence. We borrowed these trees […]

    Read More

    The Design Language Of This Residence Is Typically Associated With Sustainability | Kamat & Rozario Architecture

    ‘Roots’ was an experiment to build sustainably but not confer to the design language typically associated with sustainable buildings. This residential project re-considers the expression of sustainable architecture through a minimalist and materially grounded lens. Located on a 4,000 sq.ft. plot, the designers conceived the house for a family of three and their pet, organizing […]

    Read More
  • Vintage Style  Advocate’s Office Interior | Karan Aakriti Interior Design

    5 Tips for Becoming a Successful Architect